”コンフォリア日本橋”日本橋エリアで3駅徒歩利用、ペット飼育出来る1LDK | ROOMS秋葉原
スポンサーリンク
コンフォリア日本橋
物件紹介
駅徒歩2分のペット可物件です。3駅3路線利用可能。宅配ボックス等共用部設備充実の高級賃貸!クレジット分割可能です。
- 賃料
- 14.7万円
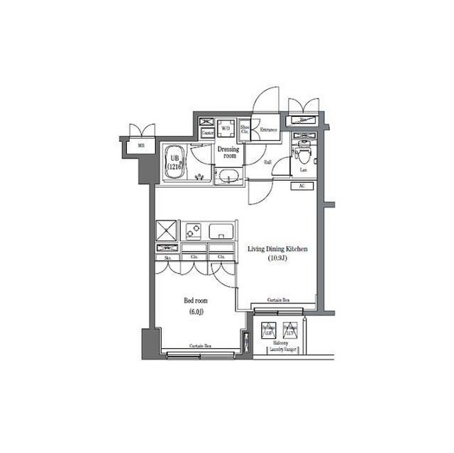
- 間取り
- 1LDK
- 専有面積
- 40.61㎡
- 所在階
- 9階
- 管理費+共益費
- 9,000円
- 敷金
- 1ヶ月
- 礼金
- 0ヶ月

物件概要 【マンション】
- 物件名
- コンフォリア日本橋
- 所在地
- 東京都中央区日本橋馬喰町1丁目
- 交通
-
- 総武本線「馬喰町」駅 徒歩2分
- 日比谷線「小伝馬町」駅 徒歩4分
- 山手線「秋葉原」駅 徒歩12分
- 賃料
- 14.7万円~14.8万円
- 管理費+共益費
- 9000円
- 面積
- 40.44㎡~40.61㎡
- 築年月(築年数)
- 2005年 11月( 築10年 )
- 種別/構造
- マンション / 鉄筋コンクリート
- 階建
- 12階建
- 備考
- 新着情報:コンフォリア日本橋の空室情報ならコチラ。こちらはペット対応物件なので、ペット可物件をお探しの方に最適。ベランダに洗濯機を置くと不便という方にはオススメ、洗濯機が室内におけます。女性のお客様からニーズの高い防犯カメラのあるマンションです。住む人のことを考えて作られた収納豊富なスペースが魅力的です。エアコン付き物件なので、嫌な湿気に悩まされることもありません。中央区で快適な新生活を迎えるなら03-5825-4722、info@rooms-akiba.comにご連絡ください。ルームズ秋葉原は数多くの物件をご用意してお待ちしております。
設備条件
- ペット相談
- ペット飼育可
- 保証人不要
- 分割可
- カップル向け
- 女性向け
- 新婚さん向け
- 仲介手数料無料
- 静かな環境
- 室内洗濯機置場
- フローリング
- ベランダ
- バルコニー
- 都市ガス
- 公営水道
- 公共排水
- 24時間換気システム
- エレベーター
- 電気有
- 照明器具付き
- 駐輪場
- 耐震構造
- 外観タイル張り
- ガスコンロ
- コンロ2口以上
- システムキッチン
- バス・トイレ別
- 追焚機能浴室
- 浴室乾燥機
- 温水洗浄便座
- 洗面台
- 洗髪洗面化粧台
- シャワー
- 独立洗面台
- エアコン
- シューズボックス
- 光ファイバー
- オートロック
- TVモニタ付インターホン
- 宅配ボックス
- ディンプルキー
- 防犯カメラ
- 24時間ゴミ出し可
物件評価:★★★☆☆
共用部綺麗で設備も豊富です。

室内も木目と白を基調とした清潔感のある内装です。

収納も豊富です。









